Zwei Eigentumswohnungen werden provisionsfrei verkauft. Beide Wohnungen sind mit Balkonen ausgestattet. Der Neubau des 3-Familienwohnhauses Mozartstraße 14 71711 Murr liegt in einer ruhigen Lage. Das Wohnhaus wird neu erstellt. Erstbezug.
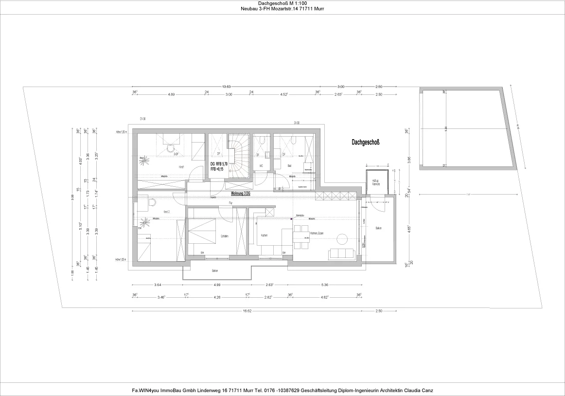
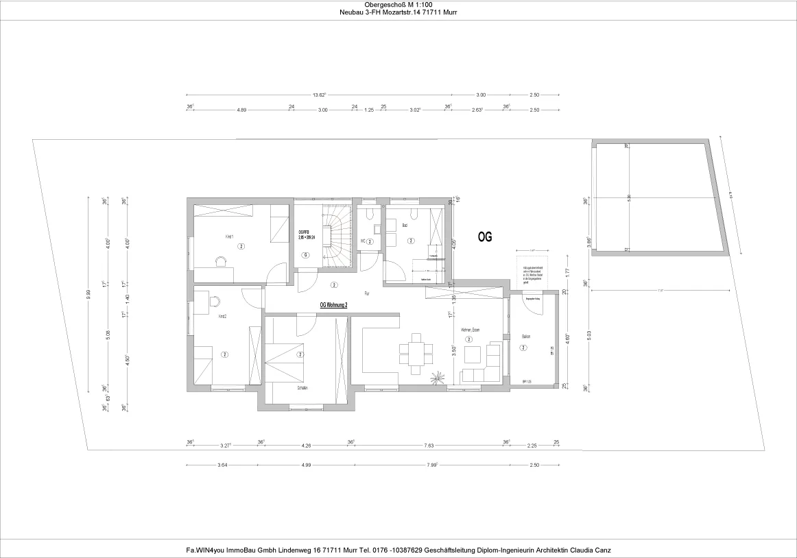
Die Grundrisse der beiden 4,5 Zimmer Wohnungen sind nahezu gleich. Der Eingangsbereich ist ein einladender zentraler Flur. Mit den Zugängen zu den einzelnen Räumlichkeiten. Wie Wohn-und Esszimmer mit Küche, den 3 Schlafzimmern, Bad und Gäste-WC. Beide Wohnungen sind mit einem großzügigen Ostbalkon (Grundfläche 10,38 m2) geplant. Der Ostbalkon wurde bewusst der Himmelsrichtung geplant. Sodass die Morgensonne genossen, aber auch in den heissen Tagesstunden genutzt werden kann. Als Schmankerl hat die Dachgeschoßwohnung zusätzlich einen Südbalkon (Grundfläche 7,95 m2).
Die Eckdaten der beiden Eigentumswohnungen in Murr:
- OG-Eigentumswohnung mit 2 Stellplätzen und einem Balkon hat eine Wohnfläche von 122,84 m2 und eine insgesamte Nutzfläche (UG-Abstellraum=17,05 m2) von rund 140 m2. Der Kaufpreis für diese Wohnung = 690.000.-Euro
- DG- Eigentumswohnung mit 2 Stellplätze und zwei Balkonen hat eine Wohnfläche von 107,35 m2 und eine insgesamte Nutzfläche (UG-Abstellraum=18,98 m2) von rund 126 m2. Der Kaufpreis für diese Wohnung = 690.000.-Euro
Die Fa.WIN4you ImmoBau GmbH erstellt in ruhiger Wohnlage das 3-Familienwohnhaus Mozartstr.14 71711 Murr.
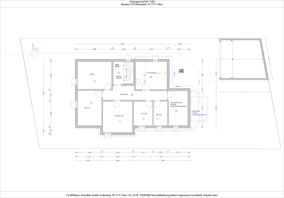
Beide Eigentumswohnungen in Murr sind mit jeweils einem großzügigen Untergeschoßraum ausgestattet.
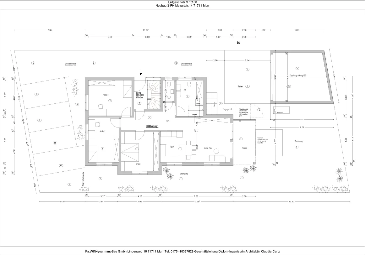
Die Erdgeschoßwohnung mit der bestehenden Doppelgarage und Untergeschoßräumen verbleiben im Eigentum der Architektin Claudia Canz
Eigentumswohnungen in Murr mit besonderen Attributen
- – Erneuerbare Energien: Wärmepumpe. Photovoltaik mit Speicher.
- – Regenwasserrückhaltung: Erdtank
- – 3-fach verglaste PVC-Fenster mit elektrisch betriebenen Rollladen
- – Sichtbarer zimmermannstechnischer Dachstuhl mit Aufsparrendämmung
- – Kalksandsteinmauerwerk mit Steinwolle-Fassadendämmung
- – Untergeschoß in WU-Beton mit zusätzlicher bituminöser Abdichtung, Perimeterdämmung
- – Sanitärausstattung, Entkalkungsanlage
- – Heizung: Wärmepumpe, Fußbodenheizung
- – Elektroausstattung
- – Bad und WC gefliest
- – Bodenbelag und Malerarbeiten in den Wohnungen als Eigenleistung
- – Schreinertüren
- – und vieles mehr, sprechen Sie mich an
Geplanter Energiestandard des Neubaus

Weil nun alles gesagt ist, folgt die bildliche Vorstellung der drei Wohneinheiten
Eigentumswohnung (verbleibt im Besitz der Veräußerin): Erdgeschoß
Eigentumswohnung in Murr zu kaufen: Obergeschoß
Eigentumswohnung in Murr zu kaufen: Dachgeschoß
Wohnung in Murr kaufen – Planzeichnungen, sodass klare Angaben vorliegen
Zur Konkretisierung nun die Baubeschreibung in kurzen Worten (Englisch+Deutsch)
And last but not least: Aktuelle Bilder vom vorbereiteten Bauplatz


